Thiết bị thổi khí Airshower phòng sạch là gì?
Phòng sạch cung cấp một môi trường được kiểm soát, trong đó các cơ sở có thể sản xuất các sản phẩm không gây ô nhiễm. Airshower là một thành phần quan trọng để duy trì môi trường sạch. Chúng bảo vệ phòng sạch bằng cách thổi các dòng khí tốc độ cao để loại bỏ các hạt gây ô nhiễm khỏi người và sản phẩm trước khi vào phòng sạch, do đó làm giảm các khuyết tật của sản phẩm và tăng năng suất. Bản thân phòng sạch thường ít yêu cầu bảo trì hơn các khu vực thông thường. Các bộ lọc hiệu quả cao (HEPA) trong phòng sạch sẽ hoạt động được lâu hơn do có hệ thống Airshower. Nếu không có hệ thống Airshower làm sạch đầu tiên, bộ lọc không khí chính của phòng sạch sẽ phải hấp thụ toàn bộ các hạt gây ô nhiễm, dẫn đến tiêu thụ năng lượng và chi phí bảo trì tăng lên.
1. Airshower hoạt động như thế nào?
Airshower là một hệ thống khép kín, hệ thống tuần hoàn không khí được lắp đặt tại các lối vào của phòng sạch và các môi trường được kiểm soát khác để giảm thiểu ô nhiễm khi công nhân bước vào không gian sản xuất sạch. Hoạt động của chúng tương tự như hệ thống máy phun rửa áp lực tại các tiệm rửa xe ô tô tự động. Ví dụ, một chiếc ô tô đi vào buồng rửa, cửa đóng ở cả hai đầu và dòng nước áp suất cao từ mọi góc độ sẽ thổi bay các hạt bụi bẩn ra khỏi xe. Chu kỳ làm sạch kết thúc, đèn bật sáng và cửa thoát hiểm mở ra.
Với Airshower, một nhân viên đi qua cửa vào và một cảm biến kích hoạt nam châm khóa liên động sau đó đóng cửa. Các luồng khí áp lực cao của Class 100, từ một số lượng lớn các vòi phun được đặt chính xác, có thể điều chỉnh hoặc các khe thẳng đứng, được thổi vào người khi họ giơ tay và xoay tại chỗ. Dòng khí tốc độ cao tạo ra hiệu ứng vỗ vào quần áo công nhân tạo ra hành động “cọ rửa”, loại bỏ các hạt bụi khỏi quần áo bảo hộ của họ. Sau đó, đèn báo báo hiệu kết thúc chu trình làm sạch và cửa ra được mở. Thông thường, mất khoảng 4 đến 8 giây cho thời gian làm sạch và sau đó thêm 2 đến 4 giây để quạt gió giảm tốc độ và cho vòi sen thời gian để lọc không khí bị ô nhiễm trước khi công nhân ra ngoài. Một bộ vi xử lý có thể điều chỉnh kiểm soát thời gian dọn dẹp và chờ đợi.

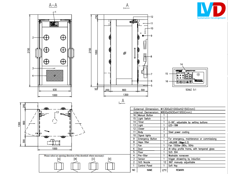
Airshower dạng vòi phun và dạng khe thổi
2. Nguồn gây ô nhiễm
Con người là nguồn gây ô nhiễm chính trong phòng sạch và bất kỳ ai bước vào phòng sạch đều phải tuân thủ các quy trình chuẩn bị để giảm các hạt gây ô nhiễm. Tùy thuộc vào yêu cầu về độ sạch của phòng sạch, nhân viên sẽ mặc một bộ quần áo bảo hộ bao trùm gần như toàn bộ cơ thể hoặc chỉ mặc áo choàng, mũ lưỡi trai hoặc mũ trùm đầu bên ngoài quần áo đường phố của họ. Airshower là cần thiết cho bước làm sạch cuối cùng trước khi vào phòng sạch vì quá trình “thay đồ” làm xáo trộn, giải phóng các chất ô nhiễm từ quần áo bình thường và có thể bám vào quần áo bảo hộ “sạch”. Các loại quần áo bảo hộ đặc biệt được làm từ vật liệu tổng hợp có bề mặt nhẵn được thiết kế để giảm thiểu sự liên kết cơ học của các hạt và các chất gây ô nhiễm. Các vật liệu sợi tự nhiên như bông hoặc len có xu hướng có bề mặt thô ráp, tạo ra liên kết cơ học cao với các hạt nên khó làm sạch. Airshower cho phép sử dụng quần áo bảo hộ phòng sạch nhiều lần trước khi cần phải làm sạch kỹ lưỡng, giảm chi phí vận hành.
3. Khả năng làm sạch của Airshower
Mục đích của Airshower là làm sạch nhanh chóng và hiệu quả các hạt ô nhiễm từ nhân viên vận hành trước khi bước vào phòng sạch. Công suất và sức chứa là hai yếu tố ảnh hưởng đến hiệu quả của một Airshower. Công suất làm sạch được xác định bởi vận tốc vòi phun và có thể được mô tả là tốc độ mà không khí được đẩy qua các vòi phun. Cần không khí với tốc độ cao để loại bỏ các hạt ô nhiễm, vận tốc hoặc lực làm sạch càng cao thì việc loại bỏ ô nhiễm càng hiệu quả.
Sức chứa là thể tích không khí lưu thông trong hệ thống. Khối lượng không khí nhiều hơn có nghĩa là làm sạch nhanh hơn và loại bỏ ô nhiễm thông qua hệ thống lọc và tuần hoàn tốt hơn. Các hệ thống Airshower hiệu quả nhất có vận tốc vòi phun là 7.800 feet / phút (fpm) và lưu thông 1.900 feet khối mỗi phút (cfm) không khí. Vận tốc được đo ngay tại vòi phun và hiệu quả làm sạch sẽ giảm đi khi khoảng cách của nhân viên với vòi phun tăng lên. Do đó, để đạt hiệu quả cao nhất, Airshower nên có số lượng vòi phun khí nhiều và đặt càng gần nhân viên càng tốt. Thông thường, không gian giữa các vòi phun trên các bức tường của buồng tắm khí đối diện là khoảng 36 inch và đứng giữa các vòi phun, một nhân viên cỡ trung bình được đặt cách xa bất kỳ một vòi phun nào khoảng 8 inch. Ở khoảng cách đó, công nhân đang trải qua vận tốc không khí trong khoảng 6.500 đến 7.000 fpm, vẫn là một lực làm sạch hiệu quả.
4. Thiết kế Airshower
Thiết kế tương tự như một khoang Airlock, Airshower thường có hai cửa không thể mở cùng một lúc - chỉ chứa một người (hoặc vài người, tùy thuộc vào kích thước, chủng loại) tại một thời điểm. Nhân viên đi vào từ một bên và ra ngoài ở bên đối diện. Khi một cánh cửa được mở, nam châm của cánh cửa còn lại sẽ được cung cấp năng lượng để ngăn cửa mở ra (cơ chế tương tự một Airlock). Trong chu kỳ làm sạch, cả hai cửa đều được đóng điện (khóa) để ngăn không cho bất kỳ ai ra vào trước khi chu kỳ hoàn thành. Thông thường, các nút tắt nguồn khẩn cấp (EPO) có sẵn trên các bức tường bên trong và bên ngoài nếu khóa cửa được lắp đặt.
Các thiết kế Buồng tắm khí bao gồm từ một hệ thống đơn lẻ trong đó chỉ một người sử dụng tại một thời điểm, đến một hệ thống lớn giống như đường hầm để các nhóm lớn đi qua nhanh hơn (xem hình trên). Quy mô để thiết kế một Airshower thường được xác định bởi số lượng người cần vào phòng sạch trong một thời gian. Các thiết kế dạng đường hầm ngày càng trở nên phổ biến vì lượng thời gian chu kỳ cần thiết cho một ca thay đổi từ 30- 40 người.
Hầu hết các Airshower đều có dạng mô-đun và có thể được cấu hình thành nhiều kích thước và hình dạng khác nhau để đáp ứng các yêu cầu cụ thể của khách hàng. Thiết kế thẳng, với vòi phun trên hai bức tường đối diện, giúp nhân viên làm sạch dễ dàng hơn. Tuy nhiên, tùy thuộc vào không gian yêu cầu của cơ sở, thiết kế 90 độ có thể được sử dụng trong đó người dùng đi vào một bên và đi ra bên phải hoặc bên trái ở góc 90 độ. Cấu hình này không có cùng số lượng vòi phun khí như thiết kế thẳng và yêu cầu công nhân phải quay 360 độ trong chu kỳ làm sạch để đảm bảo làm sạch đủ trước khi rời khỏi buồng. Các thiết kế khác có thể có cửa đôi hoặc thậm chí ba cửa để ra vào (xem hình dưới).

Vật liệu cấu trúc thường là thép không gỉ. Hầu hết lớp vỏ của một Airshower được làm bằng thép và được sơn với lớp hoàn thiện chắc chắn, bền, tương thích với phòng sạch. Đối với một số công trình y tế, dược phẩm hoặc môi trường cực kỳ ẩm ướt, kết cấu thép không gỉ là lý tưởng.
Hệ thống lọc không khí tuần hoàn của Airshower thường sử dụng hai bộ lọc, bộ lọc đầu tiên là bộ lọc sơ cấp để loại bỏ phần lớn chất gây ô nhiễm và bộ lọc thứ hai là bộ lọc thứ cấp HEPA công suất cao, hiệu quả 99,97%. Hệ thống quạt gió được gắn trên trần nhà hoặc nếu có hạn chế về chiều cao, chúng có thể được gắn trên tường bên ngoài. Tất cả việc bảo trì định kỳ đều được thực hiện từ bên trong, với các bộ lọc trước được thay đổi thường xuyên mỗi 6 tháng.
5. Tiêu chí lựa chọn Airshower
Khi muốn lựa chọn một hệ thống Airshower hiệu quả, cần xem xét những yếu tố sau:
- Hệ thống phải là dạng mô-đun, cho phép dễ dàng cấu hình, vận chuyển và lắp ráp
- Vỏ phải được làm bằng thép không gỉ hoặc thép
- Hệ thống quạt gió phải cung cấp không khí vận tốc cao, khối lượng lớn
- Hệ thống lọc tuần hoàn nên sử dụng các bộ lọc sơ cấp, sau đó là bộ lọc thứ cấp HEPA hiệu suất cao
- Các hệ thống phải đi kèm hệ thống khóa liên động cửa từ (Khóa Airlock) với các điều khiển thích hợp
Cho dù đó là ngành công nghiệp bán dẫn, sản xuất linh kiện điện tử hay các nhà máy sản xuất dược phẩm, ngày càng nhiều ngành công nghiệp sử dụng Buồng tắm khí Airshower như một phần của hoạt động phòng sạch của họ.
Mặc dù Airshower thường được sử dụng để làm sạch nhân viên mặc trang phục bảo hộ trước khi bước vào một môi trường sạch, chúng cũng có thể được sử dụng để loại bỏ các hạt ô nhiễm khi nhân viên rời khỏi khu vực làm việc nguy hiểm trước khi ra ngoài môi trường, hoặc ngăn ngừa ô nhiễm chéo khi di chuyển từ không gian làm việc này sang không gian làm việc khác.
Airshower chỉ là một yếu tố nhưng rất quan trọng, để đảm bảo hiệu quả hoạt động của phòng sạch. Việc đào tạo nhân viên thích hợp, các quy trình được lập thành văn bản và một hệ thống được duy trì tốt sẽ làm tăng năng suất sản xuất, đồng thời giảm các khuyết tật và chi phí sản phẩm.

 
				 




 h
h
 
			
						 
								 
				
			 
                                             
                                             
                                             
                                            



